Hitta ditt nya hem bland våra lediga lägenheter i Eslöv
Kontorslokaler och förråd i Eslöv. För ditt företag eller förvaring
Garage och parkeringsplatser i centrala Eslöv
För dig som redan bor hos oss. Hantera ditt boende, felanmälan och betalningar
Vi är ett familjeföretag som sedan 1989 förvaltar cirka 1100 bostäder och 75 lokaler i Eslöv. Vår affärsidé är att vara det personliga och flexibla fastighetsbolaget med stor kompetens och korta beslutsvägar.
Nybyggnadsprojekt 2025-2026
50 nya lägenheter
Anmäl enkelt fel i din bostad online. Tillgängligt dygnet runt för din bekvämlighet.
Upptäck vårt breda utbud av välskötta fastigheter i centrala Eslöv.
Vi finns här för dig. Ring oss vardagar 8:15-10:00 eller skicka ett meddelande.
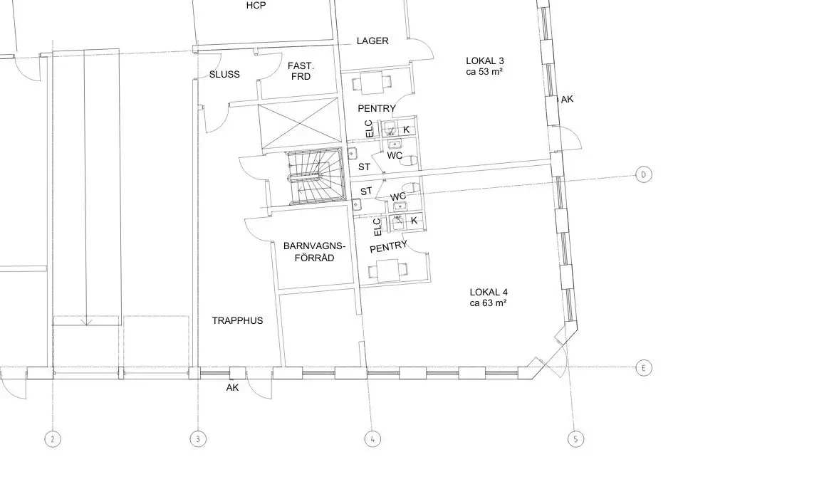
Efter att ha tittat på lokaler under en längre tid bestämde Folktandvården sig för denna lokal som passade både deras behov och önskemål. Att lokalen dessutom låg centralt var en stor fördel.
Hela processen från att ha sett lokalen till att skriva kontrakt och få den anpassad efter våra behov, till att nu vara i den dagliga verksamheten har fungerat väldigt väl. BA Bygg Fastigheter är bara ett samtal bort, om vi så bara behöver hjälp med småsaker så finns de där och hjälper oss.
Anna-Karin Persson
Klinikchef, Folktandvården i Eslöv
Anna-Karin berättar vidare hur hon tycker att det är glädjande att BA Bygg Fastigheter har tagit tillvara på husets historia som pelare, fönster och tegel. Tegelväggen i väntrummet har vi fått mycket beröm för från våra patienter.
Vi har lediga lägenheter i olika storlekar och prisklasser. Kontakta oss för att hitta din perfekta bostad.